Introducing the Peacehaven Villas

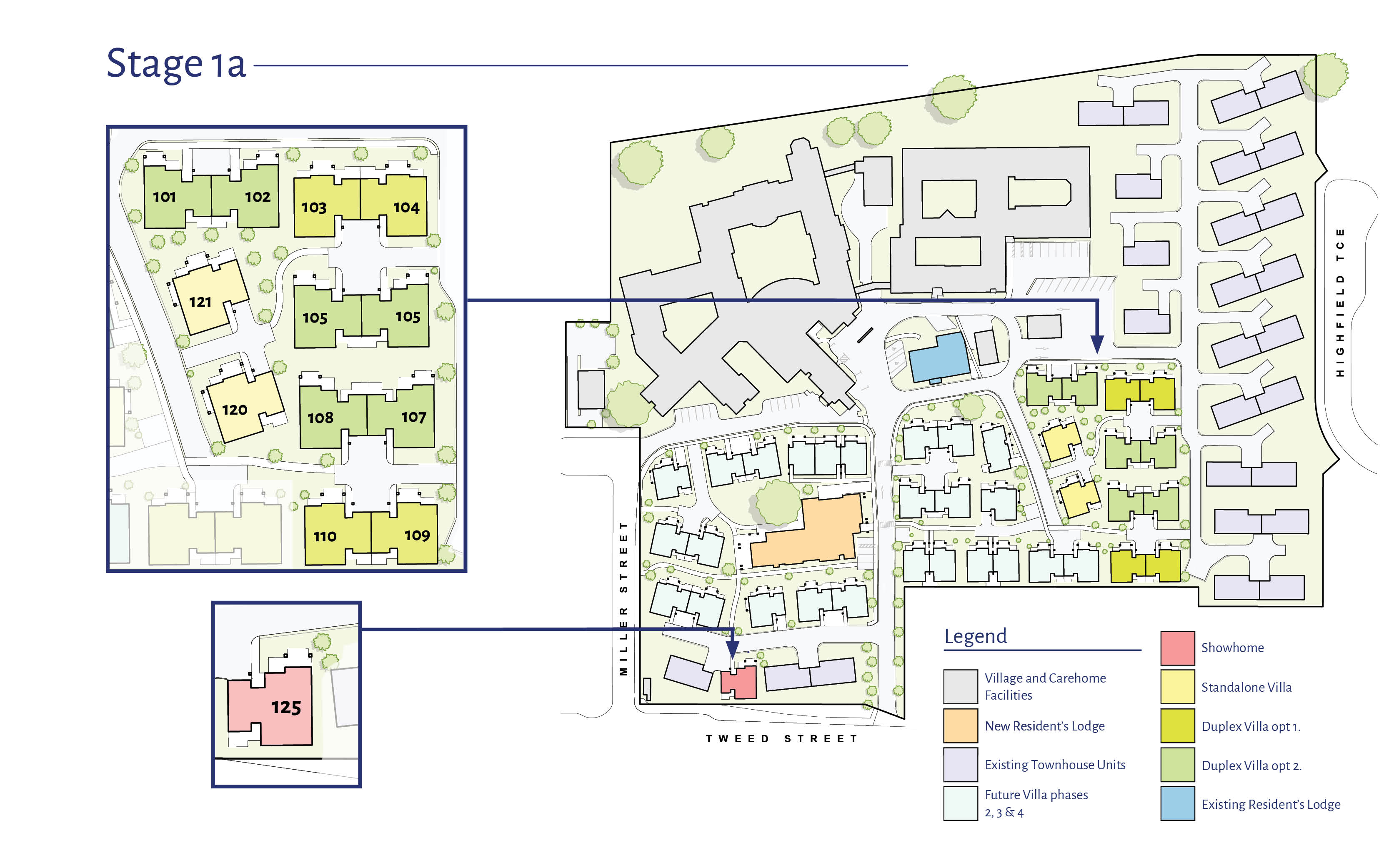
Our Peacehaven Village redevelopment, located in Invercargill, marks an exciting moment in the long history of our site. Thirty-eight new Occupation Right Agreement (ORA) villas along with a new residents lodge are to be built as part of the project, with 12 villas available in stage 1a. The first six are anticipated to be completed by May 2026 with registrations of interest now open, with the final six anticipated for completion by July 2026. 

Our architecturally-designed villas feature quality components to reflect your style and needs, and are set in large, beautifully cultivated grounds, providing the space and privacy to live in comfort and security.

The Peacehaven Villas prioritise modern, open-plan layouts and flexible living options, with contemporary finishes and colour schemes. All units are available to purchase under an ORA.

When you choose Peacehaven Village you’re also choosing a vibrant community, supported by a host of amenities which provide ongoing opportunities for companionship and social interaction. Our on-site café, existing residents’ community centre and numerous and varied activities will soon be bolstered by a new residents’ lodge which will enable a wide range of activities, able to respond to current and future residents.

Hosted on the same site as the Peacehaven care home, it means as a village resident, you will enjoy the same Enliven philosophy of care meaning you can continue to be supported if your needs change in the future.*

*subject to needs assessment and bed availability.

 

Peacehaven Redevelopment Site Map

PH Stage 1 Map Final v2

Our Villas

Architecturally-designed, with meticulous attention to detail, our new villas offer retirement living with a touch of panache. Nestled in the heart of our existing village, our new villas take their lead from the terracotta brick cladding and dark coloursteel, gabled rooflines of the existing village, interpreted with a contemporary spin. With a mix of brick, timber and plaster cladding, contrasting coloursteel roofing and powder-coated double glazing, large windows, and a north-facing covered deck which can be closed in to make a conservatory and extend your living space, these villas not only make a statement but have been created to be comfortable for years to come.

We recognise Southland light and warmth are important. With open-plan, north-facing living, heat pump heating and a warm neutral interior colour scheme, your home will look and feel warm and be the perfect backdrop for your furnishings and accessories.

With your future needs in mind, our Premium duplex villas have a main bathroom which connects to both the master bedroom and the hallway and a second standalone half bathroom for guests. While our Premium Plus standalone villas have a private en-suite bathroom off the master bedroom and large wardrobes and a second full bathroom which connects to the second bedroom and the hallway for guests.

Choice is important, and you have several different floor plans to choose from. Some of our Premium villas also offer the option of a flexi space adjacent to the living area which can be used as an extension of your living space, a movie room, an office or as a second bedroom. The choice is yours.

 

Villa Options

Overview

Grab Our Redevelopment Villa Booklet Here!

What can you expect at Peacehaven

Our village liaison/coordinators are there to support your health and wellbeing needs and help you navigate through village life 

 

The security of living in a community of like-minded people who want to maximise their independence and enjoyment of their retirement years

 

Opportunities for social interactions with other residents and the wider community 

 

Regular village updates, meetings and newsletters

 

24/7 emergency support

 

Preferential access to our Enliven care home facilities when you (or your partners) care needs change (subject to room availability) 

Bayleys Southland Real Estate

Gareth Kennedy and Nikki Dermody are Bayleys Southland Real Estate’s dedicated agents for the redevelopment of Peacehaven Villas. They bring professional expertise and a genuine, people-first approach to supporting you through this important move. From viewing the show home to understanding your needs and exploring villa options, they are here to provide clear communication and confident guidance at every step.

Open Homes and Guided Tour bookings - Peacehaven Village, 498 Tweed Street

Open homes held weekly on Wednesdays from 12.30-1.30pm.

Other viewing times available on request. 

Reach out to Gareth and Nikki today.

Gareth Kennedy
Gareth Kennedy
Licensed Salesperson
Nikki Dermody
Nikki Dermody
Licensed Salesperson
Bayleys Southland Real Estate Red Stacked

SOUTHERN NZ REAL ESTATE BROKERS LTD, BAYLEYS, LICENSED UNDER THE REA ACT 2008.